Ricerca rapida
-
-
CERCA

Mazara del Vallo (periferia)
Appartamento in buono stato

4 o più locali

Stampa scheda immobile
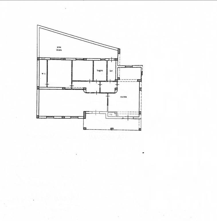
Laguna Blu Immobiliare propone per la vendita un ampio e luminoso appartamento posto al piano terra, della superficie di circa 163 mq, ideale per chi desidera spazi comodi e ben distribuiti, senza rinunciare alla funzionalità e al comfort nella zona Lo Zano.
L’ingresso conduce a un grande salone, perfetto come zona living e per accogliere ospiti, caratterizzato da ambienti ariosi e facilmente arredabili. La cucina abitabile, separata e di generose dimensioni, è impreziosita da un camino, che dona calore e un’atmosfera accogliente, rendendola il cuore della casa, ideale per momenti conviviali in famiglia.
La zona di servizio comprende una lavanderia dedicata, pratica e ben organizzata, e un bagno finestrato con doccia, comodo sia per gli ospiti che per la quotidianità.
La zona notte è composta da una cameretta, adatta come stanza per bambini, studio o camera per gli ospiti, e da una camera matrimoniale spaziosa, dotata di bagno privato in camera, che garantisce privacy e comfort.
A completare la proprietà, un terreno di pertinenza di circa 170 mq, ideale come spazio verde privato, perfetto per realizzare un giardino, un’area relax o una zona pranzo all’aperto.
La soluzione si presta perfettamente sia come abitazione principale che come investimento, grazie alla metratura generosa, alla disposizione razionale degli spazi e alla presenza di uno spazio esterno esclusivo.

Caratteristiche

Codice
V006453
Prezzo
160.000,00 EUR
Mq
163
Classe
G (175 [kWh/m³a])
Locali
4
Camere
2
Bagni
1
Mq Giardino
170
Stato Immobile
Buono
Grado
Medio
Tipo Soggiorno
Salone
Tipo Cucina
Abitabile
Accessori
Lavanderia

MAPPA

Via Castelvetrano , Mazara del Vallo (TP)
Richiedi informazioni

Sede di Mazara del Vallo

Via Salemi 181 angolo Via G. Dorso 2
91026 Mazara del Vallo TP

Tel: 0923 908209

Email: info@agenzialagunablu.it

Codice:
Nominativo: *
Telefono: *
Email: *
Dettagli richiesta: *
Autorizzo il trattamento dei miei dati personali in base Regolamento UE n. 679/2016 - Privacy Policy
Invia
Cookie preference