Ricerca rapida
-
-
CERCA

Marsala (Periferia Lato Mazara)
Casa indipendente con verande e spazio esterno

Casa singola

Stampa scheda immobile
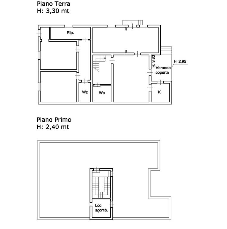
Nei pressi della C/da Fornara, proponiamo in vendita un'ampia casa indipendente di circa 170 mq, disposta su unico livello con due verande e spazio esterno privato.

L'intero fabbricato sorge su un lotto di terreno con ingresso in comune con un'altra abitazione, di cui una piccola parte esterna rimane ad uso esclusivo, con possibilità di recintarla, comoda per poter parcheggiare le auto.

La casa internamente si presenta in condizioni abitabili, gli ambienti sono ampi e ben distribuiti, con possibilità di modificarne la disposizione interna - come la realizzazione di una terza camera da letto - ed è composta attualmente da due zone living, ampio soggiorno con annessa cucina, due camere da letto e doppi servizi. Completa l'abitazione una lavanderia al piano superiore, accessibile da una scala interna.

L'acquisto di questa proprietà rappresenta un'ottima opportunità per chi ricerca un immobile con ampi spazi, in una delle zone più ambite di Marsala. Ed è possibile visionarlo previo appuntamento telefonico.

Caratteristiche

Codice
V006469
Prezzo
80.000,00 EUR
Mq
170
Classe
G (175 [kWh/m²a])
Locali
5
Camere
2
Bagni
2
Mq Giardino
50
Mq Balcone
50
Stato Immobile
Abitabile
Lati Liberi
2
Giardino
Privato
Tipo Soggiorno
Doppio
Tipo Cucina
Abitabile
Accessori
Veranda

MAPPA

Contrada Fornara , Marsala (TP)
Richiedi informazioni

Sede di Marsala

Piazza Giacomo Matteotti, 15
91025 Marsala TP

Tel: 0923 713696 / 0923 999464

Email: info@lagunablu.org

Codice:
Nominativo: *
Telefono: *
Email: *
Dettagli richiesta: *
Autorizzo il trattamento dei miei dati personali in base Regolamento UE n. 679/2016 - Privacy Policy
Invia
Cookie preference