Ricerca rapida
-
-
CERCA

Marsala (Periferia Lato Trapani)
Magazzino con progetto approvato per due unità

Casa singola

Stampa scheda immobile
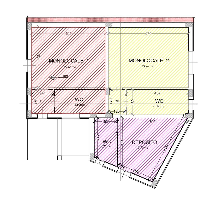
Nei pressi della C/da Birgi, a circa un chilometro dalla zona dello Stagnone, proponiamo in vendita un magazzino di circa 90 mq, con progetto approvato per la realizzazione di due unità abitative.

Le due unità come da progetto sono composte entrambe da una zona living con cucina a vista, bagno e camera soppalcata, più una veranda di pertinenza.

Compresa nella vendita c'è la servitù di un terreno distaccato, con la possibilità di lasciare due auto.

L'acquisto di questa proprietà rappresenta un'ottima opportunità per chi ricerca un immobile in una delle zone più ambite di Marsala, soprattutto per la realizzazione di un B&B o casa vacanze, ed è possibile visionarlo previo appuntamento telefonico.

Caratteristiche

Codice
V006094
Prezzo
55.000,00 EUR
Mq
90
Classe
G
Locali
4
Camere
2
Bagni
2
Posti auto
2
Stato Immobile
Prossima Realizzazione
Tipo Soggiorno
Soggiorno
Tipo Cucina
A Vista

MAPPA

C/da Birgi , Marsala (TP)
Richiedi informazioni

Sede di Marsala

Piazza Giacomo Matteotti, 15
91025 Marsala TP

Tel: 0923 713696 / 0923 999464

Email: info@lagunablu.org

Codice:
Nominativo: *
Telefono: *
Email: *
Dettagli richiesta: *
Autorizzo il trattamento dei miei dati personali in base Regolamento UE n. 679/2016 - Privacy Policy
Invia
Cookie preference