Ricerca rapida
-
-
CERCA

Marsala (Immediate Periferie)
Appartamento primo piano

Appartamento

Stampa scheda immobile
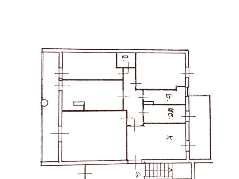
Nei pressi della Via Grotta Del Toro, non lontano dal centro della città, proponiamo in vendita un appartamenti di circa 120 mq, posto al primo piano di un palazzo ben curato e provvisto di ascensore.

L'immobile si presenta in condizioni abitabili, gli ambienti sono ampi e ben distribuiti, con balconi e numerose finestre che rendono luminoso l'ambiente, ed è composto da doppio ingresso, salone, cucina abitabile, doppi servizi, tre camere da letto ed infine un comodo ripostiglio.
L'appartamento inoltre è completo di un posto auto assegnato nel garage condominiale con annessa cantinola.

Questo appartamento rappresenta una buona opportunità per chi cerca comodi spazi in una zona non molto lontana dal centro, ed è possibile visionarlo previo appuntamento telefonico.

Caratteristiche

Codice
V006384
Prezzo
108.000,00 EUR
Mq
120
Classe
F
Locali
4
Camere
3
Bagni
2
Posti auto
1
Stato Immobile
Abitabile
Tipo Soggiorno
Salone
Tipo Cucina
Abitabile
Riscaldamento
Autonomo
Accessori
Ascensore, Cassaforte, Lavanderia, Porta Blindata, Ripostiglio

MAPPA

Via Grotta Del Toro , Marsala (TP)
Richiedi informazioni

Sede di Marsala

Piazza Giacomo Matteotti, 15
91025 Marsala TP

Tel: 0923 713696 / 0923 999464

Email: info@lagunablu.org

Codice:
Nominativo: *
Telefono: *
Email: *
Dettagli richiesta: *
Autorizzo il trattamento dei miei dati personali in base Regolamento UE n. 679/2016 - Privacy Policy
Invia
Cookie preference