Ricerca rapida
-
-
CERCA

Marsala (Centro)
Ampio appartamento a due passi dal centro storico

Appartamento

Stampa scheda immobile
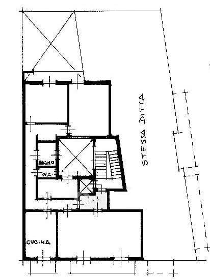
Nei pressi della Via Colocasio, a pochi passi dal centro storico della città di Marsala, proponiamo in vendita appartamento di circa 160 mq, posto al quarto piano di un palazzo ben curato e provvisto di ascensore.

Ogni ambiente offre ampi spazi abitabili per garantire il massimo comfort, con ampie finestre e balconi che consentono l'ingresso di luce naturale durante tutto il giorno. Internamente l'appartamento è composto da ingresso, ampio salone (attualmente diviso da una parete di cartongesso), cucina abitabile, ampi corridoi, tre camere da letto di cui una matrimoniale e due singole ed infine doppi servizi.

Questo appartamento rappresenta un'ottima opportunità per coloro che desiderano vivere in uno spazio confortevole e ben posizionato, ed è possibile visionarlo previo appuntamento telefonico.

Caratteristiche

Codice
V006261
Prezzo
130.000,00 EUR
Mq
160
Classe
G
Locali
4
Camere
3
Bagni
2
Stato Immobile
Abitabile
Posizione
Centro
Panorama
Vista Monumento
Tipo Soggiorno
Salone
Tipo Cucina
Abitabile
Riscaldamento
Autonomo
Tipo Riscaldam.
Caldaia
Tipo Impianto
Termosifoni
Fonte Energetica
Metano
Accessori
Ascensore

MAPPA

Via Colocasio , Marsala (TP)
Richiedi informazioni

Sede di Marsala

Piazza Giacomo Matteotti, 15
91025 Marsala TP

Tel: 0923 713696 / 0923 999464

Email: info@lagunablu.org

Codice:
Nominativo: *
Telefono: *
Email: *
Dettagli richiesta: *
Autorizzo il trattamento dei miei dati personali in base Regolamento UE n. 679/2016 - Privacy Policy
Invia
Cookie preference